■山の辺小学校校区■長期優良住宅認定物件■
| 価格 | 3,980 |
|---|---|
| 所在地 | 天理市別所町2期1号棟:新築戸建 |
| 交通 |
|
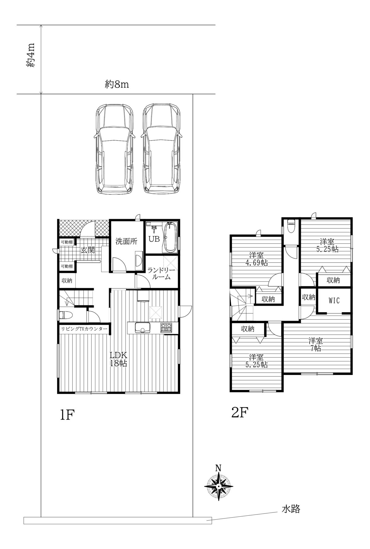
| 間取り | 4LDK |
| 土地面積 | 178.05㎡(53.86坪) |
| 延床面積 | 111.37㎡(33.69坪) |
| 築年数 | 2026年02月(完成予定) |
| 状況 | 建築中 |
| 明渡 | 相談 |
注目設備
- 小学校徒歩15分以内
- 土地面積50坪以上
- 建物面積30坪以上
- 駐車2台可
物件詳細
所在地
天理市別所町2期1号棟:新築戸建交通
- 近鉄天理線天理駅より徒歩12分
- JR桜井線天理駅より徒歩12分
小学校区
山の辺小学校(500m) 徒歩7分中学校区
天理北中学校(1,100m) 徒歩14分
-
価格
3,980
-
間取り
4LDK -
土地面積
公簿 178.05㎡(53.86坪) -
建物面積
延床面積:111.37㎡(33.69坪) / 1階:55.89㎡ / 2階:55.48㎡ -
販売区画数
1 / 1 -
築年数
2026年02月(完成予定) -
地勢
平坦 -
建ぺい率
60% -
容積率
300% -
地目
宅地 -
都市計画
市街化区域 -
用途地域
1種住居 -
接道
- 北 公道 幅員4m 間口8m
-
私道負担
なし -
セットバック
なし -
建築条件
なし -
法令上の制限
法22条区域 -
土地権利
所有権 -
土地権利
所有権 -
状況
建築中 -
明渡
相談 -
建築確認番号
第R07SHC116746号 -
国土法
届出不要 -
取引形態
仲介
-
ガス
都市ガス -
上水道
公共 -
下水道
公共 -
電気
選択なし -
設備・条件
都市ガス / 上水道 / 下水道 / 追焚機能 / 複層ガラス / 駐車2台可 / システムキッチン / 浴室乾燥機 / ウォークインクローゼット / 全室収納 / 温水洗浄便座 / 24時間換気システム / バス1坪以上 / 南面バルコニー / 新築 / トイレ2ヵ所 / 住宅性能評価取得 / 耐震等級3 / 南向き / 前面道路4ⅿ以上 / 接道6ⅿ以上 -
駐車場
あり 普通 2台 -
構造
木造 -
階数
2階 -
バルコニー
南 -
施工会社
一建設(株)
-
その他
■1号棟:3,980万円
物件管理番号:22619
【建築条件について】
建築条件付きの土地につきましては、土地売買契約締結後、3カ月以内に当社の指定する建設業者と請負契約が成立しない場合には、土地売買契約は解除され、受領した金額は全額無利息でお返しします。
物件情報一覧へ戻る
建築条件付きの土地につきましては、土地売買契約締結後、3カ月以内に当社の指定する建設業者と請負契約が成立しない場合には、土地売買契約は解除され、受領した金額は全額無利息でお返しします。
絞り込み検索
買う
物件・土地の購入をご検討されている方へ
不動産のことなら、まずはここから
会員登録
会員様限定で情報のご提供や個別相談。会員様の期間とご都合に合わせた徹底したお手伝い。
土地を探して、注文住宅を建てたい方へ
株式会社マイ工務店
系列会社「マイ工務店」では、高いデザイン性と耐震・断熱・安全性を兼ね備えた家づくりで、個性ある暮らしのお手伝いをいたします。
中古物件の購入からリフォームまで一括サポート
リフォーム事例紹介
築年数を経た古い住宅もリフォーム&リノベーションをすることで、新築さながらの住まいへと生まれ変わります。マイ工務店が手掛けた事例の一部をご紹介します。
購入費用以外に必要になる諸費用って?
購入ガイド
不動産の購入には難しいことや、はじめてで不安なことがたくさんあるはずです。不動産のプロがわかりやすく解説します。





鍵
近鉄・JR天理駅まで徒歩12分、山の辺小学校校区の新築戸建です。 駐車並列2台可能。南側にもお庭スペースあり。