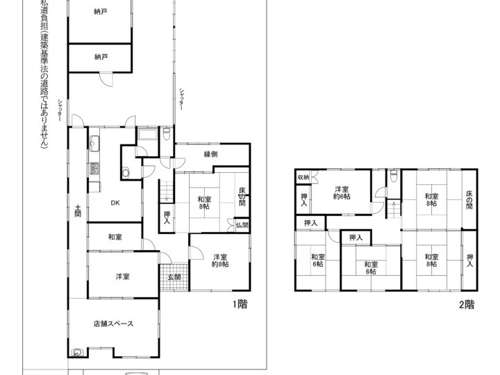
■10DK■JR櫟本駅4分■
| 価格 | 750 |
|---|---|
| 所在地 | 天理市櫟本町【当社媒介物件】 |
| 交通 |
|
| 間取り | その他 |
| 土地面積 | 345.05㎡(104.38坪) |
| 延床面積 | 195.66㎡(59.19坪) |
| 築年数 | 1966年(選択なし) |
| 状況 | 空き |
| 明渡 | 相談 |
注目設備
- 駅徒歩5分以内
- 土地面積50坪以上
- 建物面積30坪以上
物件詳細
所在地
天理市櫟本町【当社媒介物件】交通
- JR桜井線櫟本駅より徒歩3分
小学校区
櫟本小学校(400m) 徒歩5分中学校区
天理北中学校(1,400m) 徒歩19分
-
価格
750
-
間取り
その他 -
土地面積
公簿 345.05㎡(104.38坪) -
建物面積
延床面積:195.66㎡(59.19坪) -
販売区画数
1 -
築年数
1966年 -
地勢
平坦 -
建ぺい率
80% -
容積率
200% -
地目
宅地 -
都市計画
市街化区域 -
用途地域
近隣商業 -
接道
- 北 公道 幅員3.8m 間口12m
-
私道負担
あり(345.05㎡内に私道負担分あり) -
セットバック
あり(建築確認時に要) -
建築条件
なし -
法令上の制限
準防火地域 -
土地権利
所有権 -
土地権利
所有権 -
状況
空き -
明渡
相談 -
国土法
届出不要 -
取引形態
仲介
-
ガス
プロパン個別 -
上水道
公共 -
下水道
公共 -
電気
あり -
設備・条件
上水道 / 下水道 / 駐車場有 / 完成済 / トイレ2ヵ所 / 接道6ⅿ以上 -
駐車場
あり 普通 1台 -
構造
木造 -
階数
2階 -
バルコニー
-
その他概要・特記事項
■敷地内・家屋内動産物等/越境等 現状有姿■倉庫部分:未登記 -
その他
□私道負担有り□別途47.10㎡(河川部分あり)□敷地内に井戸が残存している可能性がございます□河川占用料 要
物件管理番号:22982
【建築条件について】
建築条件付きの土地につきましては、土地売買契約締結後、3カ月以内に当社の指定する建設業者と請負契約が成立しない場合には、土地売買契約は解除され、受領した金額は全額無利息でお返しします。
建築条件付きの土地につきましては、土地売買契約締結後、3カ月以内に当社の指定する建設業者と請負契約が成立しない場合には、土地売買契約は解除され、受領した金額は全額無利息でお返しします。
物件周辺地図
絞り込み検索
買う
物件・土地の購入をご検討されている方へ
不動産のことなら、まずはここから
会員登録
会員様限定で情報のご提供や個別相談。会員様の期間とご都合に合わせた徹底したお手伝い。
土地を探して、注文住宅を建てたい方へ
株式会社マイ工務店
系列会社「マイ工務店」では、高いデザイン性と耐震・断熱・安全性を兼ね備えた家づくりで、個性ある暮らしのお手伝いをいたします。
中古物件の購入からリフォームまで一括サポート
リフォーム事例紹介
築年数を経た古い住宅もリフォーム&リノベーションをすることで、新築さながらの住まいへと生まれ変わります。マイ工務店が手掛けた事例の一部をご紹介します。
購入費用以外に必要になる諸費用って?
購入ガイド
不動産の購入には難しいことや、はじめてで不安なことがたくさんあるはずです。不動産のプロがわかりやすく解説します。











鍵
JR櫟本駅から徒歩4分の10DKの中古戸建。 リノベーション向けのお家です。 南向きに広いお庭付き。減築で駐車スペース拡大も可能です。