■近鉄前栽駅徒歩9分■
| 価格 | 430 価格変更 |
|---|---|
| 所在地 | 天理市杉本町:中古戸建 |
| 交通 |
|
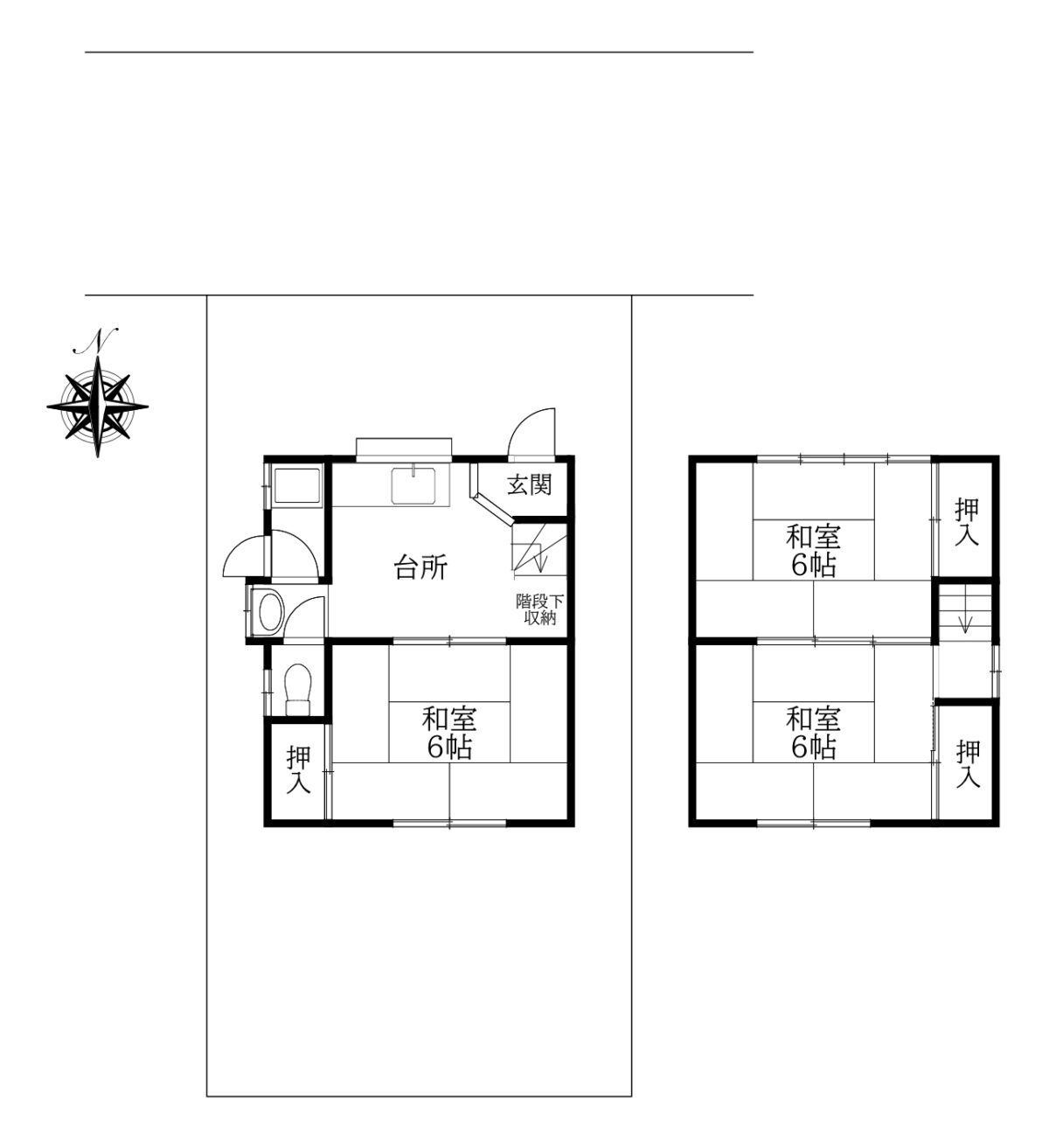
| 間取り | 3K |
| 土地面積 | 76.2㎡(23.05坪) |
| 延床面積 | 49.87㎡(15.09坪) |
| 築年数 | 1971年03月(完成) |
| 状況 | 空き |
| 明渡 | 相談 |
注目設備
- 駅徒歩10分以内
- 小学校徒歩15分以内
物件詳細
所在地
天理市杉本町:中古戸建交通
- 近鉄天理線前栽駅より徒歩9分
小学校区
前栽小学校(400m) 徒歩5分中学校区
天理西中学校(1,300m) 徒歩18分
-
価格
430
価格変更 -
間取り
3K -
土地面積
公簿 76.2㎡(23.05坪) -
建物面積
延床面積:49.87㎡(15.09坪) -
築年数
1971年03月(完成) -
地勢
平坦 -
建ぺい率
60% -
容積率
200% -
地目
宅地 -
都市計画
市街化区域 -
用途地域
1種中高 -
接道
- 北 公道 幅員4m 間口6.3m
-
私道負担
なし -
セットバック
なし -
建築条件
なし -
法令上の制限
法22条区域 -
土地権利
所有権 -
土地権利
所有権 -
状況
空き -
明渡
相談 -
国土法
届出不要 -
取引形態
仲介
-
ガス
選択なし -
上水道
公共 -
下水道
公共 -
電気
あり -
設備・条件
上水道 / 下水道 / 前面道路4ⅿ以上 / 接道6ⅿ以上 -
駐車場
なし -
構造
軽量鉄骨造 -
階数
2階 -
バルコニー
物件管理番号:23193
【建築条件について】
建築条件付きの土地につきましては、土地売買契約締結後、3カ月以内に当社の指定する建設業者と請負契約が成立しない場合には、土地売買契約は解除され、受領した金額は全額無利息でお返しします。
建築条件付きの土地につきましては、土地売買契約締結後、3カ月以内に当社の指定する建設業者と請負契約が成立しない場合には、土地売買契約は解除され、受領した金額は全額無利息でお返しします。
物件周辺地図
絞り込み検索
買う
物件・土地の購入をご検討されている方へ
不動産のことなら、まずはここから
会員登録
会員様限定で情報のご提供や個別相談。会員様の期間とご都合に合わせた徹底したお手伝い。
土地を探して、注文住宅を建てたい方へ
株式会社マイ工務店
系列会社「マイ工務店」では、高いデザイン性と耐震・断熱・安全性を兼ね備えた家づくりで、個性ある暮らしのお手伝いをいたします。
中古物件の購入からリフォームまで一括サポート
リフォーム事例紹介
築年数を経た古い住宅もリフォーム&リノベーションをすることで、新築さながらの住まいへと生まれ変わります。マイ工務店が手掛けた事例の一部をご紹介します。
購入費用以外に必要になる諸費用って?
購入ガイド
不動産の購入には難しいことや、はじめてで不安なことがたくさんあるはずです。不動産のプロがわかりやすく解説します。






















鍵
近鉄前栽駅まで徒歩9分、前栽小学校まで徒歩5分と通勤通学に便利な立地です。 リノベや新築用地としてご活用いただけます。