■自然あふれる眺望が魅力■
| 価格 | 580 |
|---|---|
| 所在地 | 奈良市都祁こぶしが丘 |
| 交通 | |
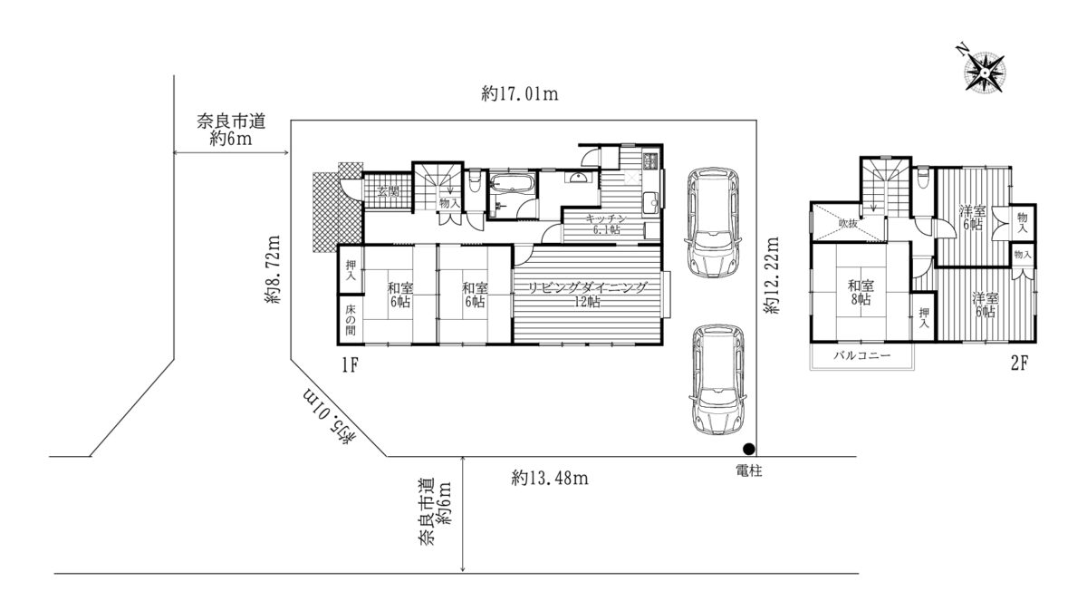
| 間取り | 5LDK |
| 土地面積 | 202.19㎡(61.16坪) |
| 延床面積 | 117.88㎡(35.66坪) |
| 築年数 | 1995年03月(完成) |
| 状況 | 空き |
| 明渡 | 即時 |
注目設備
- 土地面積50坪以上
物件詳細
所在地
奈良市都祁こぶしが丘交通
小学校区
中学校区
-
価格
580
-
間取り
5LDK -
土地面積
公簿 202.19㎡(61.16坪) -
建物面積
延床面積:117.88㎡(35.66坪) -
販売区画数
1 -
築年数
1995年03月(完成) -
地勢
高台 -
用途地域
-
接道
- 南西 幅員6m 間口13.4m
- 北西 幅員6m 間口8.7m
-
私道負担
なし -
セットバック
なし -
建築条件
なし -
土地権利
所有権 -
土地権利
所有権 -
状況
空き -
明渡
即時 -
国土法
届出不要 -
取引形態
仲介
-
ガス
プロパン集中 -
上水道
公共 -
下水道
公共 -
電気
あり -
設備・条件
上水道 / 下水道 / 駐車場有 / 南面バルコニー / 完成済 / トイレ2ヵ所 / 南向き / 接道6ⅿ以上 / 前面道路6ⅿ以上 -
駐車場
あり 車種により異なる 2台 -
構造
木造 -
階数
2階 -
バルコニー
南西
物件管理番号:23214
【建築条件について】
建築条件付きの土地につきましては、土地売買契約締結後、3カ月以内に当社の指定する建設業者と請負契約が成立しない場合には、土地売買契約は解除され、受領した金額は全額無利息でお返しします。
建築条件付きの土地につきましては、土地売買契約締結後、3カ月以内に当社の指定する建設業者と請負契約が成立しない場合には、土地売買契約は解除され、受領した金額は全額無利息でお返しします。
物件周辺地図
絞り込み検索
買う
物件・土地の購入をご検討されている方へ
不動産のことなら、まずはここから
会員登録
会員様限定で情報のご提供や個別相談。会員様の期間とご都合に合わせた徹底したお手伝い。
土地を探して、注文住宅を建てたい方へ
株式会社マイ工務店
系列会社「マイ工務店」では、高いデザイン性と耐震・断熱・安全性を兼ね備えた家づくりで、個性ある暮らしのお手伝いをいたします。
中古物件の購入からリフォームまで一括サポート
リフォーム事例紹介
築年数を経た古い住宅もリフォーム&リノベーションをすることで、新築さながらの住まいへと生まれ変わります。マイ工務店が手掛けた事例の一部をご紹介します。
購入費用以外に必要になる諸費用って?
購入ガイド
不動産の購入には難しいことや、はじめてで不安なことがたくさんあるはずです。不動産のプロがわかりやすく解説します。






















鍵
奈良市都祁こぶしが丘の自然あふれる眺望が魅力の南向きの日当たり良好なお家です。 1階面積が大きく半平屋の生活が可能です。 ライフスタイルに合わせてLDKの拡張も可能。 内覧ご希望の方は、お気軽にお問い合わせください。