■サンルーム付きの平屋■
| 価格 | 3,480 |
|---|---|
| 所在地 | 天理市石上町3期1号棟 |
| 交通 |
|
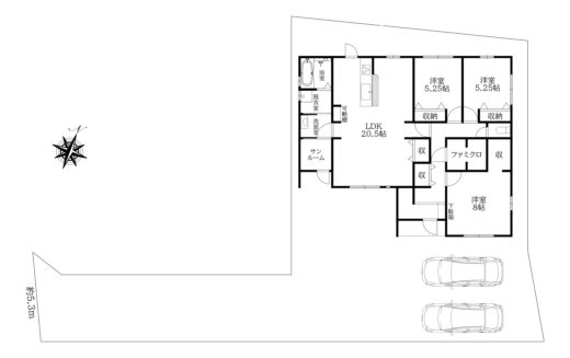
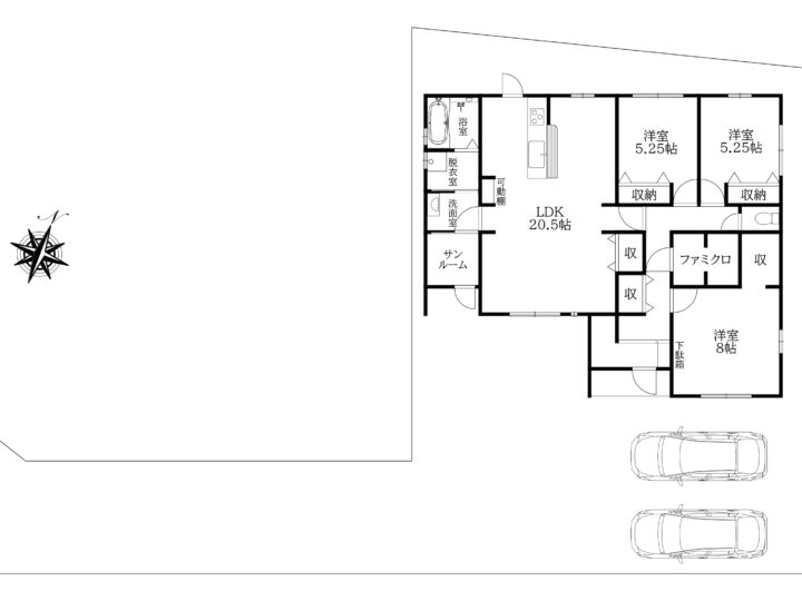
| 間取り | 3LDK |
| 土地面積 | 328.52㎡(99.38坪) |
| 延床面積 | 99.37㎡(30.06坪) |
| 築年数 | 2026年03月(完成予定) |
| 状況 | 建築中 |
| 明渡 | 相談 |
注目設備
- 小学校徒歩15分以内
- 土地面積50坪以上
- 駐車2台可
物件詳細
所在地
天理市石上町3期1号棟交通
- JR桜井線櫟本駅より徒歩23分
- 近鉄天理線天理駅 バス(17分)「天理北中学」より徒歩8分
小学校区
山の辺小学校(1,200m) 徒歩15分中学校区
天理北中学校(800m) 徒歩10分
-
価格
3,480
-
間取り
3LDK -
土地面積
公簿 328.52㎡(99.38坪) -
建物面積
延床面積:99.37㎡(30.06坪) -
販売区画数
1 / 1 -
築年数
2026年03月(完成予定) -
地勢
平坦 -
建ぺい率
60% -
容積率
300% -
地目
宅地 -
都市計画
市街化区域 -
用途地域
1種住居 -
接道
- 西 幅員4m
-
私道負担
なし -
セットバック
なし -
建築条件
なし -
法令上の制限
法22条区域 -
土地権利
所有権 -
土地権利
所有権 -
状況
建築中 -
明渡
相談 -
建築確認番号
第R07SHC116635号 -
国土法
届出不要 -
取引形態
仲介
-
ガス
選択なし -
上水道
公共 -
下水道
公共 -
電気
選択なし -
設備・条件
上水道 / 下水道 / オール電化 / 追焚機能 / 複層ガラス / 駐車2台可 / システムキッチン / 浴室乾燥機 / IHクッキングヒーター / ウォークインクローゼット / 全室収納 / 温水洗浄便座 / 24時間換気システム / バス1坪以上 / 新築 / 主寝室8帖以上 / 耐震等級3 / 南向き -
駐車場
あり 普通 2台 -
構造
木造 -
階数
-
バルコニー
-
施工会社
一建設株式会社
物件管理番号:23264
【建築条件について】
建築条件付きの土地につきましては、土地売買契約締結後、3カ月以内に当社の指定する建設業者と請負契約が成立しない場合には、土地売買契約は解除され、受領した金額は全額無利息でお返しします。
建築条件付きの土地につきましては、土地売買契約締結後、3カ月以内に当社の指定する建設業者と請負契約が成立しない場合には、土地売買契約は解除され、受領した金額は全額無利息でお返しします。
物件周辺地図
絞り込み検索
買う
物件・土地の購入をご検討されている方へ
不動産のことなら、まずはここから
会員登録
会員様限定で情報のご提供や個別相談。会員様の期間とご都合に合わせた徹底したお手伝い。
土地を探して、注文住宅を建てたい方へ
株式会社マイ工務店
系列会社「マイ工務店」では、高いデザイン性と耐震・断熱・安全性を兼ね備えた家づくりで、個性ある暮らしのお手伝いをいたします。
中古物件の購入からリフォームまで一括サポート
リフォーム事例紹介
築年数を経た古い住宅もリフォーム&リノベーションをすることで、新築さながらの住まいへと生まれ変わります。マイ工務店が手掛けた事例の一部をご紹介します。
購入費用以外に必要になる諸費用って?
購入ガイド
不動産の購入には難しいことや、はじめてで不安なことがたくさんあるはずです。不動産のプロがわかりやすく解説します。













鍵
石上町の南向きの日当たり良好な平屋です。 洗面室と脱衣所が別々になっており、生活しやすい間取りとなっております。 住宅ローンの相談や内覧希望の方はお気軽にお問い合わせください。